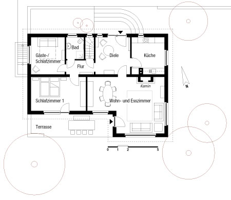
Die 100 m² des Hauses verteilen sich auf Diele, Wohnzimmer mit Essecke und Kamin, zwei Schlafräume, moderne Küche und Bad. Die nach Süden und Westen ausgerichteten Wohn- und Schlafräume, Sonnenterrasse und Liegewiese bieten einen freien Blick auf den Selenter See.
